HMX 130
The Helioscreen HMX 130 is an external blind system built for durability and performance in the uniquely harsh Australian climate. Designed and engineered in Europe, this is an uncompromising product of the highest quality, featuring a sturdy 130x150mm headbox that allows many installation variations, including with optional headbox mounting brackets.
Supplier: HELIOSCREEN
Origin: Europe
:
Cable Guide Stainless Steel Fixings Bush & Wall Bracket, Bush & Bottom Fix Plate, Bush & Universal Bracket, Timber Deck Mount
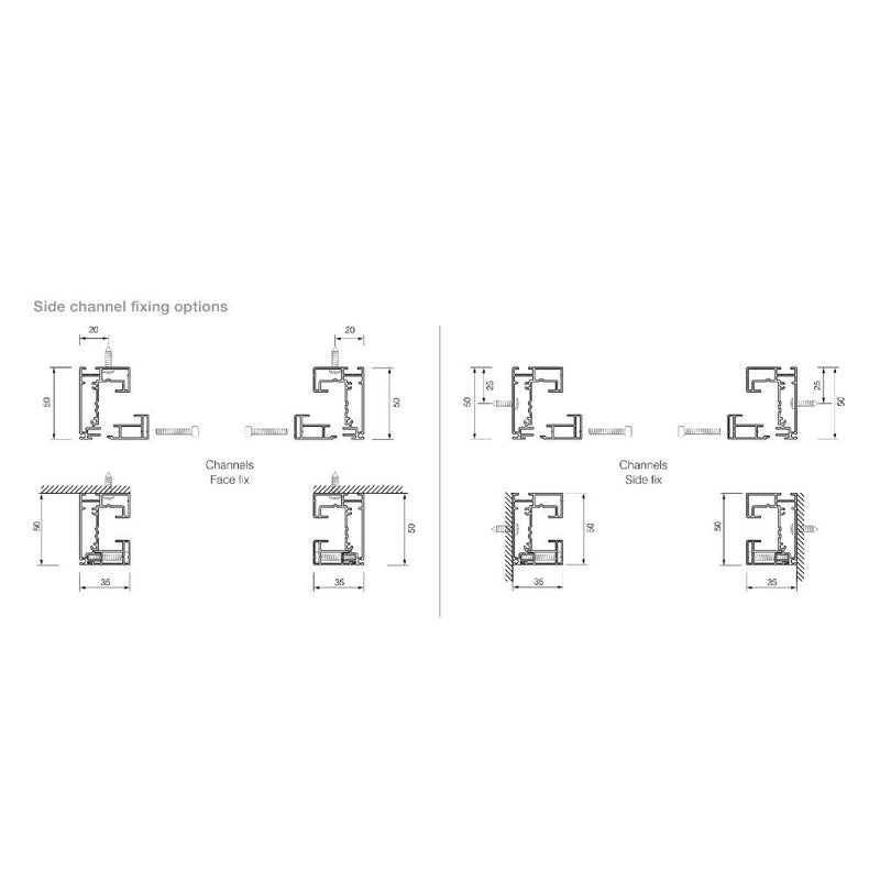
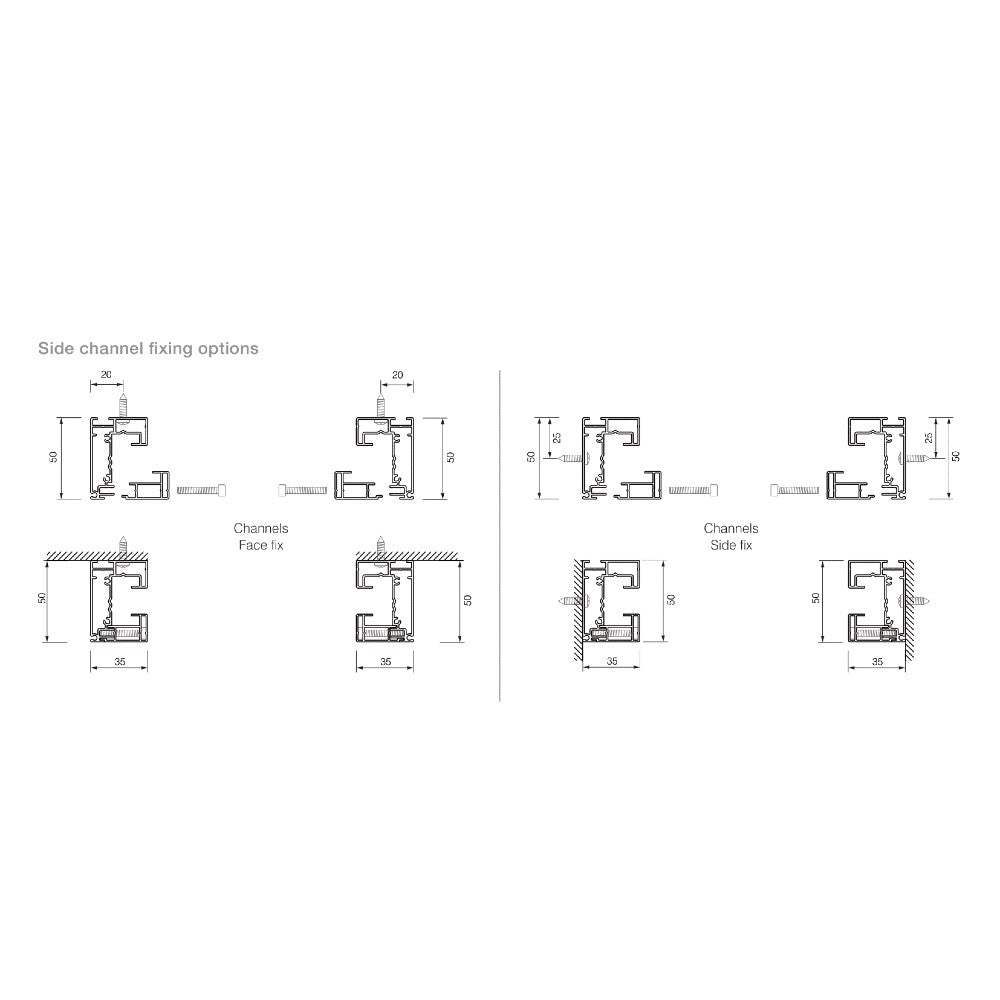
Aluminium Channel Guide Fixings: Face Fix, Side Fix
Optional Headbox Fixing Brackets: Face Fix, Top Fix
:
Maximum width: 770mm
Maximum width: 6000mm
Maximum drop: 4000mm
Maximum area: 16sqm
Linkable: Yes
Fabric deductions: 40mm per side
Headbox: Two part extruded aluminium headbox 130x150mm
End plates: Cast aluminium with guide cable connection lug
Roller tube: 80 / 85 / 95mm roller tube
Guide cables: 316 grade stainless steel guide cables and fittings
Guide channels: Two part extruded guide channels 35x50mm
Installation options: Reveal or face fix installation variations













